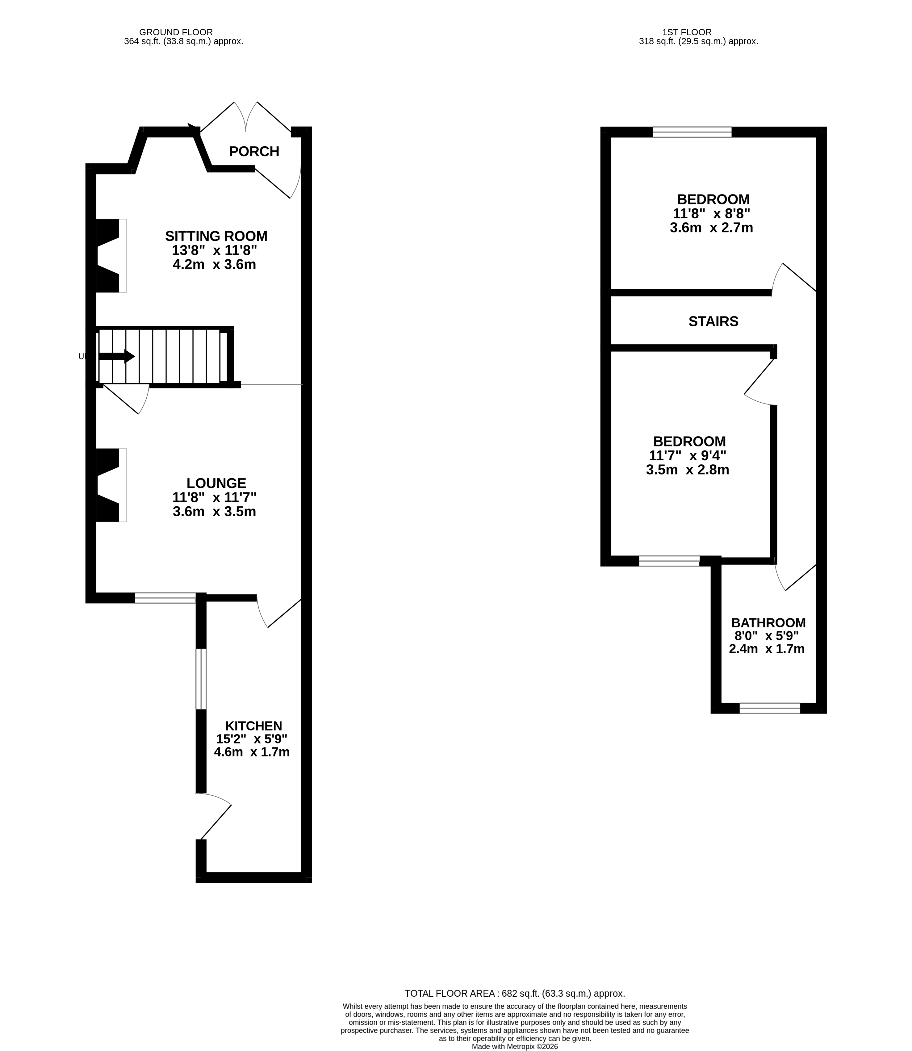
Charming period terraced house located close to the many local amenities Stechford has to offer. This delightful property boasts 2 bedrooms, 2 reception rooms, an upstairs bathroom, making it ideal for a small family or professionals seeking a cosy yet convenient living space. The house is accessible and affordable, offering a perfect blend of comfort and functionality. Enjoy the lovely garden and patio area, perfect for relaxing or entertaining guests. With its characterful features and great location, this property is a must-see for those looking for a charming home in a bustling town. Don't miss out on the opportunity to make this house your own and experience the best of Birmingham living. Contact us today to arrange a viewing!